Property Description
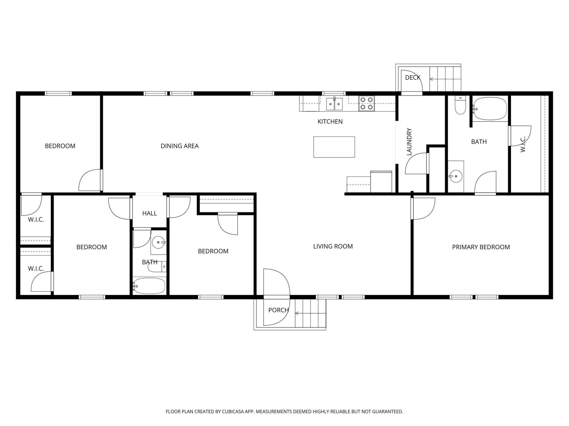
This 2022 model manufactured home was installed in October 2023 on a 1.09-acre lot boasting single-story living and an open-concept layout. This home is located approximately 20 minutes to Berea and 15 minutes to the Berea Pinnacles and is close to the Mckee Trailhead of the Sheltowee Trace National Recreation Trail, with easy access to regional off-road systems and outdoor recreation. Interior features include a central kitchen with island workspace, ample cabinetry and included kitchen appliances (refrigerator, range, dishwasher). The open living and dining areas provide a connected layout with natural light. There is a split-bedroom floor plan with the primary suite positioned separately from the 3 additional bedrooms. The primary bedroom includes a large walk-in closet and private bath with single-sink vanity and a tub/shower combination. Three additional bedrooms are located on the opposite side of the home, along with a second full bathroom with single-sink vanity and tub/shower combination. The laundry area is positioned off of the kitchen in a dedicated nook right off of the back yard entryway. Vinyl plank flooring runs throughout main living areas, with neutral finishes carried throughout the home. This home's exterior includes a 1.09-acre lot with open yard space, a gravel driveway, and gorgeous rural surroundings with tree-lined views. Both entry points include step access with small landing areas at both front and rear, with plenty room to add on. The major systems including HVAC, water heater, and roof are original to the 2023 installment of the home. Make sure to schedule your private showing today!
Property Features
Amenities
Feature Descriptions
Local Schools
Listed By / Shown By
Listed By
Agency Name: Berkshire Hathaway HomeServices Foster Realtors
Shown By
Agent Name: Donna White
Agent Phone: (606) 594-5432
Agency Title: SALLIE DAVIDSON, REALTORS
Estimate Your Payment
Estimated Payment
$ 772.92 per month $714.88 Principal & Interest $0.00 Property Tax (data not provided by mls) $58.04 Homeowner's Insurance

2741 Highway 1955 | MLS# 26007825
This single family home located at 2741 Highway 1955 , Mc Kee, KY 40447 is currently listed for sale with an asking price of $199,000. This property has 4 bedrooms and 2 full baths with 1750 sq. ft. Highway 1955 is located in the Rural subdivision within the Jackson County - 21 school district. Search Rural real estate on teacherd.salliedavidson.com today.